4 Bed Detached House, Trewern, SY21

  • 4 bedrooms
  • 2 bathrooms
  • 8 tenants max.
  • Welshpool

Discover the rare opportunity to rent a truly characterful Grade II* listed farmhouse in a tranquil rural setting near the Shropshire and Mid Wales border. Llwyn Melyn sits within delightful grounds extending to approximately three-quarters of an acre, with far-reaching views across the Breidden Hills and Long Mountain. Just a short drive from Shrewsbury and the West Midlands, the location also offers easy access to the Mid Wales coast and Snowdonia National Park. This historic home exudes period charm and rustic elegance, with exposed beams, quarry-tiled floors, timbered ceilings, and inglenook fireplaces found throughout. The spacious layout and abundance of natural light make it an ideal countryside retreat for tenants seeking peace, space, and inspiration.

This exceptional rental home would suit individuals or families looking for long-term accommodation in a serene and picturesque countryside setting. The paddock and further land may be available by separate negotiation. Ideal for those seeking a lifestyle that blends comfort, heritage, and nature.

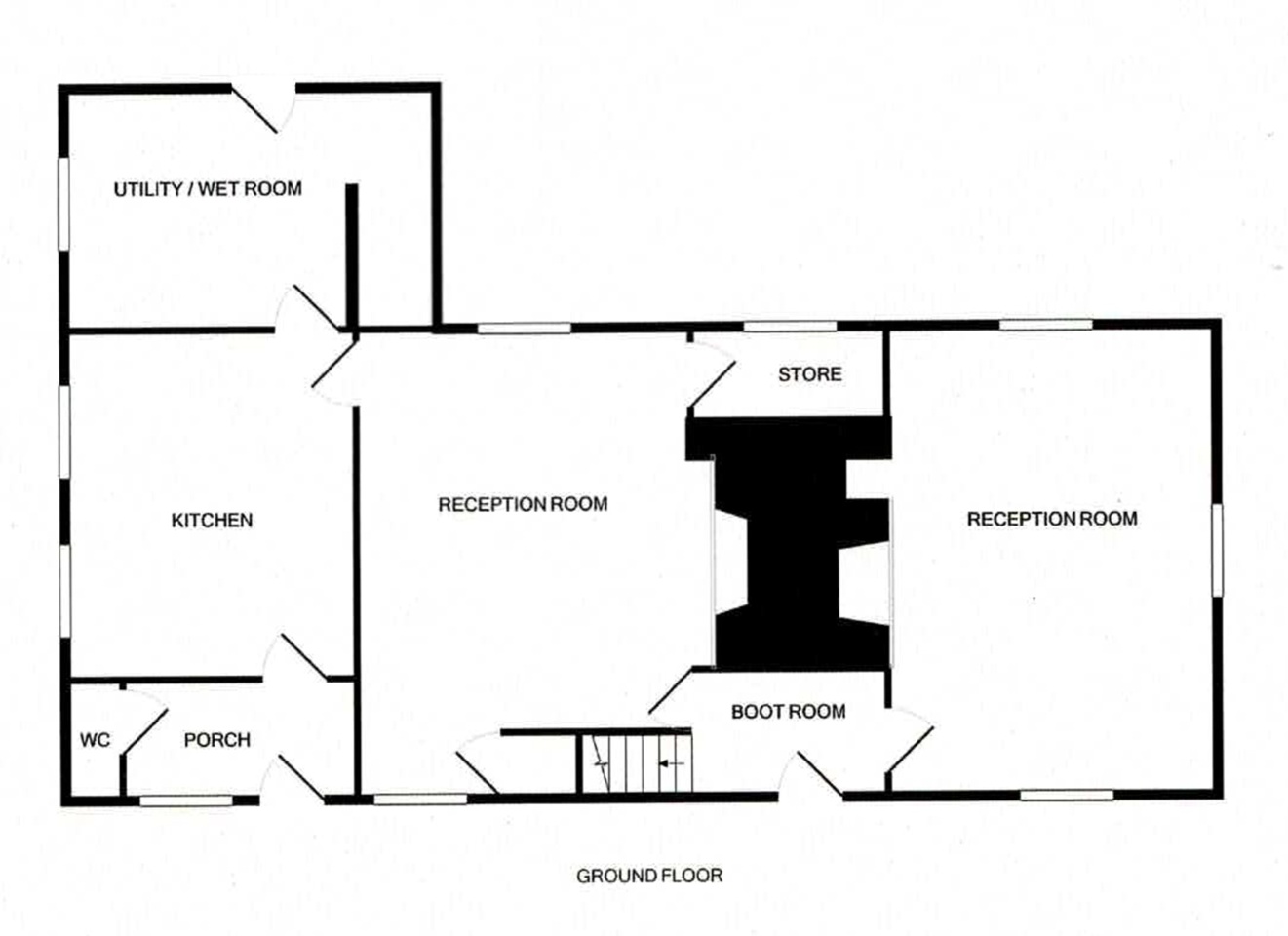
Ground Floor Accommodation

Boot Room

9'2" x 5'11" (2.8m x 1.8m) A practical entrance space with quarry-tiled flooring and stairs leading to the first floor.

Reception Room One

21'8" x 15'1" (6.6m x 4.6m) Bright and spacious, with windows to three aspects, exposed beams, and a traditional fireplace with quarry-tiled hearth and exposed brickwork.

Reception Room Two

22'0" x 15'5" (6.7m x 4.7m) A stunning, character-filled living space featuring windows to front and rear, exposed beams and panelling, and a large inglenook fireplace with seating, bread oven, and log burner. Storage room and under-stairs cupboard also accessible from here.

Kitchen

16'1" x 13'9" (4.9m x 4.2m) A delightful farmhouse kitchen with side aspect windows, exposed timbers and beams, fitted base and overhead units, integrated oven and hob, and space/plumbing for white goods.

Utility Room

17'1" x 11'2" (5.2m x 3.4m) Side window and rear garden access. Fitted work surfaces and base units, shower cubicle, vanity basin, and plumbing for white goods.

Front Porch

10'10" x 5'7" (3.3m x 1.7m) Charming and functional, with front-facing window, plumbing for white goods, Belfast sink, and a WC off.

First Floor Accommodation

Landing Room

22.4ft x 15.1ft Min (6.8m x 4.6m Min) A grand vaulted space with exposed beams, original floorboards, and views to both front and rear — ideal as a study, lounge, or creative retreat.

Bedroom One

21.8ft x 15.5ft (6.6m x 4.7m) Spacious double with front and rear windows, original floorboards, and striking exposed beams and timbers.

Bedroom Two

16.5ft x 11.6ft (5m x 3.5m) A lovely double bedroom with rear aspect window and fitted wardrobe space.

Bedroom Three

13.5ft x 10.10ft (4.1m x 3.3m) Double bedroom with front-facing window, beams and timbers adding rustic charm.

Bathroom

8.6ft x 8.2ft (2.6m x 2.5m) Includes bath, WC and basin, with side aspect window.

Price & Bills

Deposit £2,076.92
Rent PCM £1,750.00
Bills Included
Broadband View Offers

Tenant Preference

Student Friendly
Families Allowed
Pets Allowed
Smokers Allowed
DSS/LHA Covers Rent

Local Housing Allowance rates in this area would be insufficient to cover the rent for this property and number of bedrooms.

Availability

Available From Today
Minimum Tenancy 12 Months

Features

Garden
Parking
Fireplace
Furnishing Unfurnished
EPC Not Required Property is a listed building
4 Bed Detached House, Trewern, SY21

Welshpool, SY21