We noticed that you are using an outdated web browser. While this site is mostly accessible this way, you may find that some features do not work correctly, or at all.
We do not test our site on older browsers, but work tirelessly to support all modern browsers.
To enjoy all OpenRent has to offer, and improved security across the web, please update your browser!
We noticed that you currently have cookies disabled. While this site is mostly accessible
without the use of cookies, you're still missing out on some pretty neat features. You won't be able to login to OpenRent without cookies enabled. We work tirelessly to ensure our use of cookies is small and unobtrusive.
Please add us to your whitelist, or enable cookies in your browser!
We noticed a script on this page failed to load.
We recommend reloading the page to ensure everything is working correctly.
Sorry - it seems an error occurred.
Please check your internet connection and then try again below, or go to our simple sign in screen
Sorry - it seems an error occurred speaking to your email provider.
Please check your internet connection and then try again below, or go to our simple sign in screen
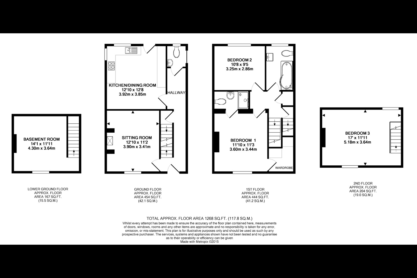
A homely terraced town house packed with character, refurbished to a high standard. Situated in a quiet No Through Road, uniquely positioned a short stroll from the town centre, with county walks at your doorstep.
Sitting room with woodburning stove
Kitchen-diner living room
Cloakroom
Cellar
3 Bedrooms - master bedroom with ensuite shower room, two further bedrooms and a family bathroom
Sunny front garden with mature fruit trees and views to an historic ford and countryside beyond
Private rear garden with sun terrace and vegetable plot
Two generous off-road parking spaces and shed storage.
Thanks, property saved! You can manage all your favourites on your My Favourites page.
If you wish to favourite this property, you need to be registered or logged in.
To do that, please Click Here.
Need Help?
Need Help?
Still need help?
Still need help?
You recently got in touch to ask:
Read more
Our customer support will be in contact to help you as soon as possible. In the meantime, if you've managed to resolve your issue yourself, we'd appreciate if you could let us know below.