4 Bed Terraced House, Grace Avenue, WD7

  • 4 bedrooms
  • 3 bathrooms
  • 5 tenants max.
  • Shenley, Radlett

Key features

Four bedrooms

Open plan reception room with kitchen / dining room

Three bathrooms + cloakroom

Garden

2 car parking spaces at front of house


Description

Offered for rent and available immediately, is this beautiful and spacious town house, set back from Porters Park Drive, across the road from Shenley Park and beside local amenities. The generous living accommodation comprises four bedrooms (one of which is currently set up as an office/games room), three bathrooms, downstairs WC, spacious and open plan living space comprising hallway, kitchen, dining and living area. Modern contemporary kitchen and new boiler. Wooden floors throughout, except for carpeted staircase. The property benefits from a rear garden and is located in a private courtyard. Efficient Energy (EPC Rating) Band C. Council Tax Band G. Please note: £2850 per month unfurnished. £3000 per month furnished.


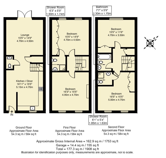
Layout

Hallway

Downstairs WC

Kitchen Breakfast/Diner Room - 5.15m x 4.70m (16'11 x 15'5)

Lounge - 4.70m x 4.50m (15'5 x 14'9)

Landing

Master Bedroom - 4.70m x 4.50m max (15'5 x 14'9 max) 3 double built in wardrobes

En-Suite Shower Room

Bedroom Four - 4.95m x 4.70m (16'3 x 15'5)

Landing

Bedroom Two - 5.00m x 4.70m (16'5 x 15'5) 2 double built in wardrobes

Bedroom Three - 5.00m x 4.m (15'5 x 11'6) 1 double built in wardrobe

Family Bathroom

Rear Garden

Parking - 2 car parking spaces

Price & Bills

Deposit £2,850.00
Rent PCM £2,850.00
Bills Included
Broadband View Offers

Tenant Preference

Student Friendly
Families Allowed
Pets Allowed
Smokers Allowed
DSS/LHA Covers Rent

Local Housing Allowance rates in this area would be insufficient to cover the rent for this property and number of bedrooms.

Availability

Available From Today
Minimum Tenancy 6 Months

Features

Garden
Parking
Fireplace
Furnishing At tenant choice
EPC Rating C
4 Bed Terraced House, Grace Avenue, WD7

Shenley, Radlett, WD7

  • National Rail

    Radlett ~47 min. walk