2 Bed Semi-Detached House, Hill Road, BS25

  • 2 bedrooms
  • 1 bathrooms
  • 3 tenants max.
  • Sandford, Winscombe

Immaculate New Build 2-Bedroom Home within sought after village, Sanford. 

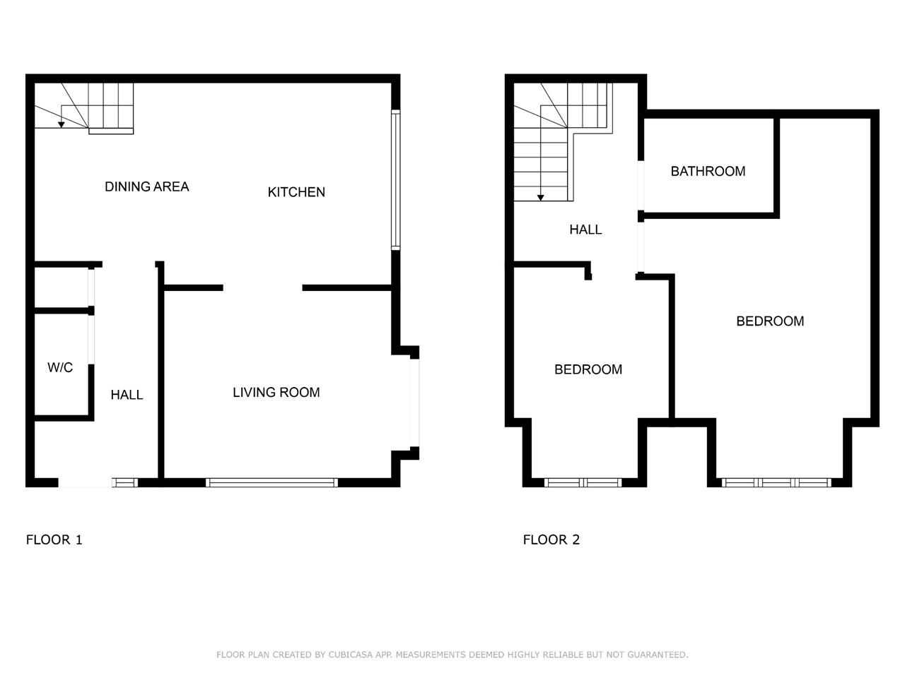
This beautifully finished new build home offers stylish and low-maintenance living in a peaceful residential location, perfect for families and professionals. Designed with modern lifestyles in mind, this spacious three-bedroom property is set over two floors and offers contemporary interiors, generous proportions, and a serene backdrop of greenery.

At the front of the home, you’ll find a sleek open-plan kitchen and dining area, complete with modern white units, wood-effect surfaces, and integrated appliances—a practical and attractive space ideal for cooking, dining, or entertaining. Durable wood-style flooring throughout the ground floor enhances the flow and warmth of the interior.

To the rear, a separate lounge with plush grey carpet and double doors to the garden provides a relaxing retreat, perfect for quiet evenings or family time.

Upstairs, the home offers three comfortable double bedrooms, all benefitting from ample natural light and green views. The fully tiled bathroom features a shower-over-bath, modern fittings, and a unique sloped ceiling that adds architectural interest while remaining highly functional.

Property highlights include:

  • High-spec new build construction

  • Fresh, neutral décor throughout

  • Carpeted stairs and first-floor landing

  • Gas central heating and energy-efficient design

  • French doors opening to a private rear garden

  • Two dedicated parking spaces

  • Bright, modern lighting throughout

With its combination of quality craftsmanship, modern finishes, and a tranquil location, this newly built home is a must-see. Viewings are highly recommended to fully appreciate the space and setting.

Price & Bills

Deposit £1,494.23
Rent PCM £1,295.00
Bills Included
Broadband View Offers

Tenant Preference

Student Friendly
Families Allowed
Pets Allowed
Smokers Allowed
DSS/LHA Covers Rent

Local Housing Allowance rates in this area would be insufficient to cover the rent for this property and number of bedrooms.

Availability

Available From Today
Minimum Tenancy 12 Months

Features

Garden
Parking
Fireplace
Furnishing Unfurnished
EPC Rating C
2 Bed Semi-Detached House, Hill Road, BS25

Sandford, Winscombe, BS25