2 Bed Terraced House, Lower Oddington, GL56

  • 2 bedrooms
  • 2 bathrooms
  • 4 tenants max.
  • Moreton In Marsh
SHORT TERM RENTAL Charming Cotswolds Stone Cottage in Lower Oddington

Discover this beautiful two-bedroom, two-bathroom period cottage set in the heart of Lower Oddington — one of the Cotswolds’ most sought-after villages. Just moments from the acclaimed Daylesford Organic farm to table store and cookery school, and a short drive to Kingham village and train station, the location blends peaceful countryside living with unbeatable convenience.
Sandwiched between Moreton-in-Marsh to the north, Stow-on-the-Wold in the east and Chipping Norton in the west, Lower Oddington is perfectly placed for exploring this iconic designated Area of Outstanding Natural Beauty.
You’ll also be within easy reach of Soho Farmhouse, Estelle Manor, and Diddly Squat Farm Shop, making this the ideal Cotswolds base whatever your itinerary.

Property Overview

Built in traditional Cotswold stone, the cottage is arranged over three charming floors and offered fully furnished for short-term stays.
It also benefits from a beautifully enclosed stone-walled garden, featuring a sun-soaked patio with comfortable outdoor seating — the perfect spot for morning coffee, long lunches, or unwinding in the peaceful Cotswold surroundings.


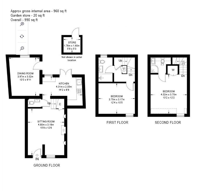
Ground Floor
  • Cosy, light-filled living room ideal for unwinding after a day exploring
  • Fully equipped kitchen
  • Ground-floor WC  
  • Separate dining room perfect for relaxed meals or entertaining  
  • Stone walled garden

First Floor
  • Spacious double bedroom
  • Well-appointed bathroom on the same floor

Top Floor
  • Charming double bedroom with private ensuite bathroom, offering comfort and privacy

Ideal For
  • Trying out life in the Cotswolds before making a move
  • Accommodation between property purchases
  • Comfortable corporate stays

Price & Bills

Deposit £5,495.00
Rent PCM £5,495.00
Bills Included
Broadband View Offers

Tenant Preference

Student Friendly
Families Allowed
Pets Allowed
Smokers Allowed
DSS/LHA Covers Rent

Local Housing Allowance rates in this area would be insufficient to cover the rent for this property and number of bedrooms.

Availability

Available From Today
Minimum Tenancy 1 Months
Maximum Tenancy 6 Months
Online Viewings

This indicates the landlord's availability to perform viewings online, if you are unable to be physically present.

You can read more about remote viewings in this blog post.

Features

Garden
Parking
Fireplace
Furnishing Furnished
EPC Rating E
2 Bed Terraced House, Lower Oddington, GL56

Moreton In Marsh, GL56