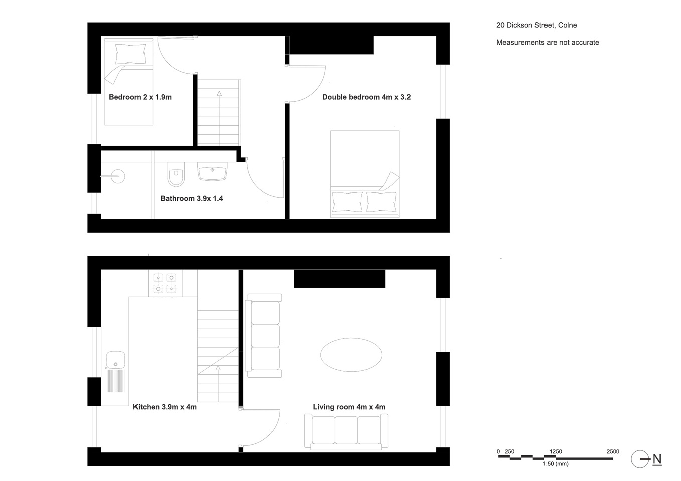
2 Bed Terraced House, Dickson Street, BB8

  • 2 bedrooms
  • 1 bathrooms
  • 2 tenants max.
  • Colne
We are proud to offer this delightful 2 bedroom, 1 bathroom terraced house in a great location.

Available to move in from 26 September 2025, this property benefits from garden access. Property is offered unfurnished.

Viewing highly recommended. Contact OpenRent today for more details or to arrange a viewing!

Summary

Rent £730.00 per month (£168.46 per week)
Deposit / Bond is £730.00

Minimum tenancy is 6 months
Maximum number of tenants is 2

Price & Bills

Deposit £730.00
Rent PCM £730.00
Bills Included
Broadband View Offers

Tenant Preference

Student Friendly
Families Allowed
Pets Allowed
Smokers Allowed
DSS Income Accepted

The broad rental market area (BRMA) of this property is: West Pennine

Availability

Available From Today
Minimum Tenancy 6 Months

Features

Garden
Parking
Fireplace
Furnishing Unfurnished
EPC Rating D
2 Bed Terraced House, Dickson Street, BB8

Colne, BB8