4 Bed Terraced House, Old Watling Street, CT1

  • 4 bedrooms
  • 2 bathrooms
  • 7 tenants max.
  • Canterbury
*** Family home in amazing central location**** We are excited to offer this 1600 sq ft modern, spacious, very centrally located 4 bedroom, 2.5 bathroom townhouse which has been renovated and fully furnished to a high standard. There is decking to the rear of the property which offers stunning green views onto a communal back garden. 

Situated in a quiet, green residential cul-de-sac yet mere minutes walk from the High Street, Westgate Gardens, Greyfriars Gardens, Toddlers Cove play area and Canterbury East AND West stations, this property is ideal for a professional couple/family. 

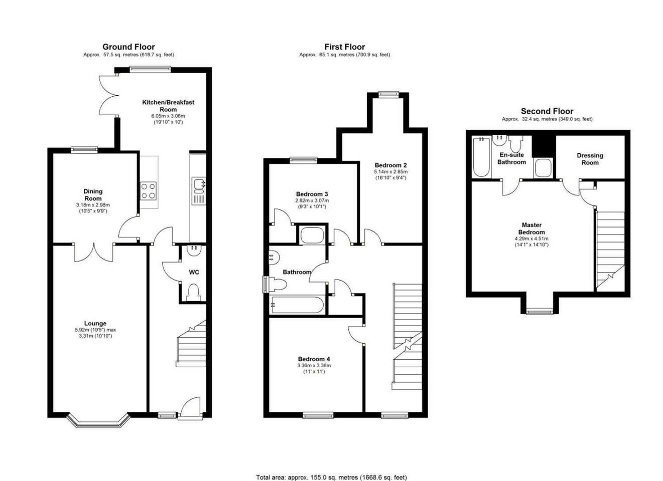
Available now, the property boasts accommodation over 3 floors, secure garage parking for 1 vehicle (a 2nd vehicle could apply for Resident's permit in the Southern Way Car Park) and access to the gated communal garden. The property is fully furnished with a 58-inch Smart TV and new white goods including a Bosch washing machine, Bosch fridge-freezer, Bosch tumble dryer, microwave, dishwasher, oven and gas cooker. The kitchen is fully supplied with tableware, cutlery, WMF cookware and Spiegelau wineglasses. 

Ground floor: Hallway, W/C, open plan living/dining and separate kitchen with views of rear communal garden. Generous outdoor decking with patio furniture. Small rear garden with paving/turf. 

1st floor: 1x double bedroom with double bed and mattress, 1x double bedroom with trundle-style pull-out bed containing 2 single mattresses, 1x single bedroom with single bed and mattress. Family bathroom with separate shower and bathtub. 

2nd floor: 1x Superkingsized bed and mattress. En-suite with separate shower and bathtub. 

All mattresses from Hypnos. Pillows, bedlinen, towels optional.  

Tenant will be responsible for utilities (except broadband) & council tax of £3326.92 per annum or £277.24 per month. (Council Tax Band F) 

***Rental price includes Superfast BT fibre broadband. 

Contact OpenRent today for more details or to arrange a viewing. 

Summary

Rent £2850 pcm. 

Minimum tenancy - negotiable
Maximum number of tenants is 7

Price & Bills

Deposit £3,288.46
Rent PCM £2,850.00
Bills Included
Broadband View Offers

Tenant Preference

Student Friendly
Families Allowed
Pets Allowed
Smokers Allowed
DSS/LHA Covers Rent

Local Housing Allowance rates in this area would be insufficient to cover the rent for this property and number of bedrooms.

Availability

Available From Today
Minimum Tenancy 1 Months

Features

Garden
Parking
Fireplace
Furnishing Furnished
EPC Rating C
4 Bed Terraced House, Old Watling Street, CT1

Canterbury, CT1